Припливно-витяжна вентиляція: особливості та правильне облаштування
Вентиляційна система – це важлива складова сучасних будинків, що зводяться, спираючись на концепт енергоефективності.
Енергоефективний будинок герметичний, не випускає тепло та холод, згенеровані системами опалення та кондиціювання відповідно. Тому в конструкції відсутні щілини, в які могло б потрапляти чисте повітря з вулиці. А відкривати вікна для провітрювання протипоказано – такий метод вентиляції допускає великі тепло- та холодовтрати, і передбачає попадання пилу та алергенів у приміщення.

Проте відсутність вентиляції неприпустима для нормального, комфортного життя. Люди постійно видихають CO2, який накопичується у приміщенні та негативно впливає на здоров’я та самопочуття. Якщо ви не впускаєте в кімнати чисте, насичене киснем повітря, і не видаляєте надлишки вуглекислого газу та вологи з брудних зон (санвузли, кухні), то незабаром зіткнетеся з негативними наслідками.
- Перевищення концентрації вуглекислого газу призведе до втоми, зниження працездатності, головного болю.
- Перевищення рівня вологи, яка постійно генерується в брудних зонах і поширюється по квартирі або будинку, призведе до проблем зі здоров’ям та псування інтер’єру.
Припливно-витяжна вентиляція – ідеальний спосіб забезпечити правильний повітрообмін у будинку чи квартирі. Далі у статті ви дізнаєтеся, що таке ПВВ (припливно-витяжна вентиляція), як працюють системи на базі різних вентустановок, а також які рішення можна назвати найкращими на сьогоднішній день.
Принцип роботи припливно-витяжної системи вентиляції
Припливно-витяжна вентиляція – це система, яка передбачає подачу чистого повітря до приміщень, а також видалення відпрацьованих повітряних мас з брудних зон. Реалізувати цей сценарій дозволяє ПВУ – припливно-витяжна установка, яка повністю контролюватиме повітрообмін в одному або кількох приміщеннях житлового простору. ПВУ є моноблочним пристроєм, в корпусі якого передбачені необхідні компоненти для здійснення різних процесів:
- припливний та витяжний вентилятори для примусового руху повітря;
- фільтри – для очищення повітря від пилу та інших дрібних частинок;
- перед- або постнагрівачі повітря, для безпечної роботи системи та подачі повітря комфортної температури;
- рекуператор – теплообмінник, призначений для економії та створення комфорту у приміщенні (докладніше про цей компонент ми поговоримо далі);
- вимірювальні датчики для автоматичного контролю припливної та витяжної вентиляції тощо.
Крім безпосередньо самої установки, знадобляться додаткові елементи, які дозволять реалізувати централізовану систему вентиляції:
- система повітроводів;
- зовнішні решітки (крізь них надходитиме чисте повітря з вулиці і видалятиметься відпрацьований потік);
- шумоглушники;
- статичні камери;
- розподільники повітря (решітки, дифузори або анемостати).
Крім свого головного завдання (забезпечення повноцінного повітрообміну) ПВУ може виконувати додаткові функції – фільтрацію, нагрівання, зволоження чи охолодження повітря. Кількість можливих завдань регулюється наявністю відповідних вузлів у системі.

Про принцип роботи припливно-відточної вентиляції у приміщенні ми вже говорили раніше, але згадаємо ще раз.
По суті, ваше житлове приміщення, будинок чи квартира, поділяється на зони двох категорій:
- чисті – житлові простори, де люди проводять більшу частину часу (спальні, вітальня, дитячі кімнати);
- брудні – кімнати, де ви знаходитесь не завжди, і де можуть накопичуватися різні запахи і волога (ванна та туалет, кухня, вбиральня, пральня і так далі).
До чистих зон подається свіже повітря, з брудних відводяться відпрацьовані маси.
Повітрообмін завжди має бути збалансованим. Це означає, що кількість повітря, яке установка подає в чисті зони, повинна в повному обсязі забиратися з брудних зон. Наприклад, якщо ПВУ подала у всі приміщення 100 м3 повітря, то й забрати вона має 100 м3.
Якщо не дотримуватись цього простого правила при проєктуванні системи припливно-витяжної вентиляції, то ви отримаєте некоректний повітрообмін, а ефективність рекуперації знизиться.
Однак це правило далеко не єдине. Щоб створити ідеальну атмосферу будинку, доведеться враховувати безліч невеликих нюансів, які є складною схемою організації припливно-витяжної вентиляції. Це одна з причин, що спонукають звернутися до фахівців.
Припливно-витяжна вентиляція: ключові особливості
Звичайно, краще звертатися до фахівців, якщо ви вирішили створити правильну систему вентиляції в будинку. Давайте поговоримо про те, яких базових правил (крім тих, що ми обговорили вище), дотримуються інженери при проєктуванні системи:
- Елементи подачі повітря (дифузори, анемостати або решітки) необхідно розмістити в точках, максимально віддалених від дверей. Таким чином, поки чистий потік переміщатиметься до найближчої зони витяжки, він наситить киснем усе приміщення.
- Для того, щоб повітряний потік міг перетікати з приміщення до приміщення, необхідно організувати йому шлях. Тому під дверима треба передбачити зазор до двох сантиметрів.
- Проєктуючи систему повітроводів, необхідно створити грамотну аеродинаміку, щоб повітряний потік зустрічав якнайменше бар’єрів на своєму шляху. Тому важливо, щоб шлях повітря від вентустановки до розподільника повітря був коротким, без перетинів. Таким чином ви зможете не тільки використовувати меншу кількість матеріалу, але й уникнете акустичного дискомфорту.
На додаток до попереднього пункту, скорочення шумових характеристик роботи системи досягається шумоізоляцією. Її потрібно обов’язково передбачити під час створення проєкту. Шумоглушники важливо встановити на кожному з повітроводів. Самі повітропроводи необхідно правильно вибрати – інакше ви так само ризикуєте зіткнутися з шумом роботи системи.
І навіть ці пункти охоплюють далеко не всі аспекти проєктування схеми припливно-витяжної вентиляції. Принцип роботи фахівців передбачає куди складніші моменти.
Наприклад, не менш важливо передбачити теплоізоляцію повітроводів, які забирають повітря з вулиці та викидають відпрацьовані маси. Інакше на них утворюватиметься конденсат під час різких перепадів температур, характерних для зимового сезону. Для теплоізоляції зазвичай використовується каучук, товщина якого не менше 2 см.

Наступний важливий момент – система фільтрації. Фільтрується не тільки повітря, яке подається до приміщень, а й потік, що видаляється з брудних зон. Все тому, що пил, який так чи інакше є вдома, потрапляючи на рекуператор та інші внутрішні елементи, може, зрештою, вивести установку з ладу.
Побутова припливно-витяжна система комплектується такими фільтрами:
- G4 – елемент, що передбачає грубе очищення від великих частинок пилу (підходить для очищення витяжного повітря);
- F7 – фільтр, який може зупиняти дрібніші частинки (у тому числі алергени), здійснюючи тонке очищення (для припливного повітря).
- вугільний фільтр – зазвичай опціональний елемент, який купується додатково для очищення припливного потоку від запахів.
І останнє – дуже важливо правильно підібрати місце для самої ПВУ. Для цього багато мешканців виділяють окреме приміщення, оскільки робота пристрою все ж таки супроводжується шумом, та й загалом прилад досить габаритний.
Чи варта припливно-витяжна вентиляція того, щоб дотримуватись стільки різних нюансів? Давайте порівняємо плюси та мінуси системи.
Переваги припливно-витяжних систем
Серед головних переваг ПВУ слід зазначити:
- здійснення якісного, збалансованого повітрообміну;
- подачу повітря, очищеного від пилу та алергенів;
- підвищення енергоефективності всього будинку завдяки системі рекуперації;
- автоматизацію процесу вентиляції, зокрема можливість роботи з використанням датчиків вуглекислого газу.
У результаті, ви отримуєте ідеальний мікроклімат у будинку, який сприятливо впливатиме на самопочуття мешканців та подарує максимальний комфорт.
Недоліки припливно-витяжної вентиляції
У всьому можна знайти недоліки, але для припливно-витяжної вентиляції зробити це складно. Серед певних мінусів можемо наголосити лише на тому, що система не є безкоштовною (на відміну від відкритого вікна). Однак ми вже поговорили раніше, чому це погана ідея.
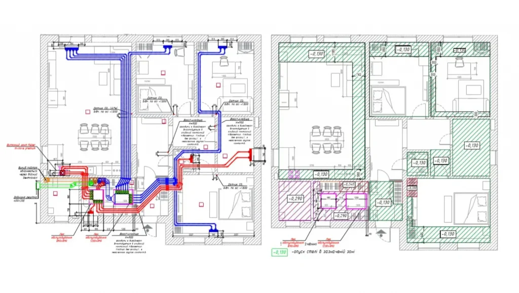
Другий недолік – необхідність у опусканні стелі, яке в підсумку складе 17 см.
Припливно-витяжна система вентиляції з рекуперацією
Ми вже кілька разів згадували рекуператори та рекуперацію раніше. Але що таке рекуперація, і чому вона така важлива?
Рекуператор є важливим елементом припливно-витяжної вентиляції. По суті, це теплообмінник, який забирає теплову енергію у повітря, що видаляється, і передає її на припливний потік.
Давайте докладніше розглянемо роботу рекуператора у системі вентиляції.
Якщо у вас немає припливно-витяжної установки з рекуператором, повітря з санвузла все одно видаляється через вентканал природної вентиляції, або за допомогою витяжного вентилятора. Однак обидва ці способи передбачають виведення повітря одразу на вулицю. Енергія, витрачена опалювальною системою на його нагрівання, а також волога пропадають даремно.

Якщо у вас є припливно-витяжна вентиляція з рекуперацією тепла, витяжне повітря не відразу викидається на вулицю, а спершу потрапляє на рекуператор. Там воно віддає своє тепло пластинам (у випадку із пластинчастим теплообмінником), і вже потім виходить за межі житла. Припливне повітря проходить через ті самі пластини, і нагрівається від них. Таким чином, після рекуператора до чистих зон потрапляє свіже повітря кімнатної температури.
У побутових вентустановках використовують або пластинчасті рекуператори, або ентальпійні (передають ще й вологу, забезпечуючи пасивне зволоження кімнат).
Давайте резюмуємо плюси системи рекуперації:
- Економія. Нагріте системою опалення повітря не викидається відразу на вулицю, а спочатку віддає тепло повітрю. ККД рекуперації може становити до 95%, що сприяє значній економії на опаленні.
- Комфорт. У приміщення подається повітря кімнатної температури, а отже не створюються прохолодні зони в кімнатах.
Мінусів у системи рекуперації практично немає, хіба теплообмінник вимагає регулярного обслуговування.
Тепер, коли ми розібралися в нюансах роботи припливно-витяжної вентиляції, ми повинні поговорити про те, як правильно її вибрати.
Розрахунок припливно-витяжної вентиляції
Вибір обладнання вимагає особливого підходу, в основі якого лежать розрахунки по повітрообміну. Вони допоможуть підібрати пристрій потрібної потужності. Усього можна використовувати три методи:
- За кратністю. Цей показник залежить від розмірів приміщення і передбачає кількість повітря, яке повністю змінюється за певний період (наприклад, за годину). Як правило, для житлових приміщень приймається кратність 0,6. Помноживши цей показник на об’єм кімнат, ви зрозумієте, якої потужність прилад вам підходить.
- За кількістю людей. Найпоширеніший метод, що передбачає подачу певної кількості повітря для кожного мешкаючого (15 м3/год – для зниженого, 25 м3/год – для оптимального, та 36 м3/год – для підвищеного рівня комфорту).
- За рівнем CO2. Такий метод підходить тільки при встановленні VAV-системи вентиляції, яка контролює приплив і витяжку припливно-витяжної системи датчиками вуглекислого газу. У такому разі для розрахунку береться показник 60 м3/год на людину.
Після розрахунку по повітрообміну проводиться аеродинамічний розрахунок. Завдяки йому підбираються правильні повітропроводи (про це ми трохи поговорили раніше). Важливо, щоб швидкість повітря при переміщенні трубами не перевищувала 3 м/с, а на виході з системи була від 2 до 2,5 м/с.
Обладнання для припливно-витяжної вентиляції
Для початку зазначимо: припливно-витяжна вентиляція насправді ділиться на дві великі категорії: децентралізована та централізована.
Децентралізована система не є канальною, тобто не передбачає підключення повітроводів. Пристрої децентралізованої припливно-витяжної вентиляції називаються “побутові рекуператори”. Вони забезпечують повітрообмін лише в одній кімнаті, і тому у будь-якому випадку доповнюються витяжними вентиляторами у санвузлах. Звідси випливають мінуси такого рішення:
- частина теплого та вологого повітря все ще викидатиметься на вулицю;
- кожна установка реалізує повітрообмін лише в одній кімнаті;
- пристрої не мають великої продуктивності;
- через те, що повітря подається і забирається в одній точці, в кімнаті залишаються “сліпі зони”, куди не потрапляє свіже повітря.
Плюс тільки один – завдяки відсутності повітроводів таке рішення підходить для реалізації в готовому інтер’єрі і не вимагає опускання стелі.
Саме тому статтю ми присвятили розповіді про централізовані припливно-витяжні системи, більш ефективні та раціональні.
Серед всього вентиляційного обладнання необхідно виділити унікальні побутові установки Jablotron Futura M та Futura L.
Насамперед їх унікальність криється у вбудованій VAV-системі (системі змінної подачі повітря) під назвою Vario Breeze. Вона працює завдяки двом важливим елементам:
- VAV-клапанам;
- датчикам CO2.
Датчики вуглекислого газу встановлюються в кожній житловій кімнаті та контролюють рівень CO2 у повітрі. Як тільки в кімнату заходять люди, рівень, звичайно, починає підвищуватися – це фіксують датчики і передають сигнал на вентустановку.
Jablotron Futura самостійно приймає рішення підвищити подачу чистого повітря в зону, що використовується, і передає сигнал на клапан змінної подачі. Клапан відкривається сильніше і забезпечує підвищену подачу до тих пір, поки рівень CO2 не нормалізується.

Таким чином забезпечується підвищений комфорт для людей і одночасно економія електроенергії.
Посилену витяжку повітря із брудних зон зможе забезпечити додатковий чіп Boost Button. Він активується одночасно з включенням світла (наприклад, у санвузлі) і подає сигнал про те, що зона використовується. Jablotron Futura закриває решту клапанів забору повітря, і посилює витяжку з потрібної зони.
Наступна унікальна технологія Jablotron – унікальний рекуператор із ентальпійною технологією. Він набагато менш схильний до забруднень, ніж звичайні ентальпійні рекуператори, і має високий ККД, забезпечуючи пасивне зволоження повітря.
Також до вентустановки Jablotron можна підключити кухонну витяжку Faber із вбудованим Boost Button. Таким чином, пара та волога, що утворюються під час готування, потраплятимуть на рекуператор.
І звичайно, не можна не згадати про тепловий насос Cool Breeze, який зможе охолоджувати повітря у міжсезоння (не замінює систему кондиціювання), а також допомагає рекуператору подавати повітря потрібної температури холодними днями.
Загалом аналогів вентустановкам Jablotron та їх широкому функціоналу на даний момент не існує.
Припливно-витяжна вентиляція: схеми монтажу

Часті питання щодо систем припливно-витяжної вентиляції
-
Навіщо потрібна система припливно-витяжної вентиляції?
Припливно-витяжна система вентиляції потрібна для того, щоб ви не відчиняли вікна для забезпечення повітрообміну у своєму будинку. Відкриті вікна сприяють потраплянню гарячого або холодного повітря до приміщення, а також через них до приміщення потрапляють пил та алергени. Примусова вентиляція може створити комфортний мікроклімат, що сприяє енергоефективності будинку та економії ресурсів.
-
Як зробити припливно-витяжну вентиляцію?
При влаштуванні припливно-витяжної вентиляції необхідно провести розрахунок повітрообміну та аеродинамічний розрахунок. Важливо правильно підібрати та розмістити повітроводи, повітророзподільні елементи. Загалом доведеться врахувати безліч нюансів, які краще спершу обговорити з фахівцями.
-
Чи вигідно використовувати припливно-витяжну вентиляцію з рекуперацією?
Безперечно, головна перевага системи рекуперації – це економія. Завдяки рекуператору система опалення не відчуватиме додаткове навантаження, і рахунки за комунальні послуги значно знизяться (до 35% економії).