Модуль охолодження/нагріву Jablotron CoolBreeze

Модуль охолодження Cool Breeze - це тепловий насос, який поєднує ефективність, сучасні технології та забезпечує користувачеві комфортний мікроклімат і ефективне охолодження приміщення. Модуль також здатний регулювати вологість та зробити ваше перебування вдома чи в офісі комфортнішим.

162 148 грн
В наявності

Опис

Модуль CoolBreeze

Модуль CoolBreeze – це тепловий насос, який є додатковим елементом вентиляційної системи Futura L/M і встановлюється на приплив повітря, розширюючи можливості вентиляційної системи.

Головними плюсами у роботі модуля є:

  • можливість регулювання рівня вологості у будинку;
  • зниження енергоспоживання;
  • здатність автоматичної адаптації до зовнішньої температури: потужність охолодження установки посилюється у разі підвищення зовнішньої температури, що відбувається завдяки випаровуванню конденсату.
Характеристики

Переваги Cool Breeze

Інтеграція вентустановки Futura та модуля Cool Breeze забезпечить високий рівень комфорту у кожній точці вашого будинку чи квартири. Тепловий насос використовує для роботи повітря, яке обробляє основне обладнання.

Установка модуля Cool Breeze дає можливість додатково кондиціонувати повітря у літній період завдяки адіабатичному охолодженню конденсату теплообмінника. Але важливо розуміти, що Cool Breeze не зможе повністю замінити систему кондиціювання чи опалення.

Jablotron CoolBreeze

Конструкція та керування

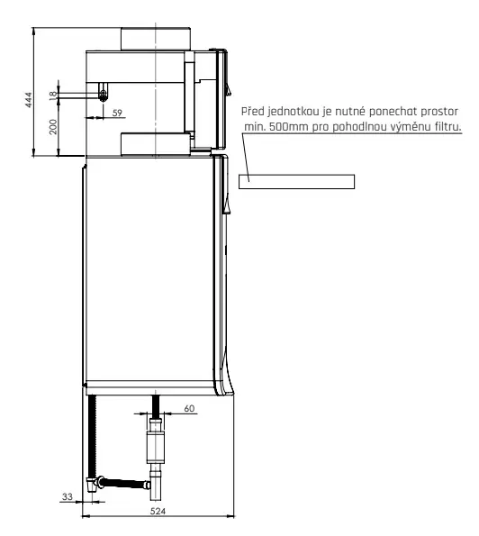
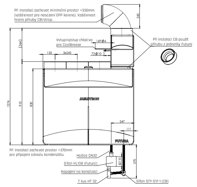
Конструкція модуля включає два блоки: внутрішній та зовнішній, які об’єднує одна магістраль. Внутрішній блок підключається до вентиляції Futura, а зовнішній блок встановлюється зовні будівлі на фасад.

Для перемикання режимів та регулювання потужності модуля CoolBreeze передбачений кімнатний контролер Alfa з кнопковим керуванням, а також можливість управління через програму на комп’ютері або через додаток на смартфоні (MyJablotron).

Додаток My Jablotron

Технічні характеристики

Виробник Jablotron
Країна-виробник Чехія
Гарантія 36 місяців
Вага 6 кг
Розміри 364x254x481 мм
Холодопродуктивність 5 кВт
Тип аксесуару Модуль охолодження/нагріву

Документація

Брошура Jablotron Futura
file
Інструкція з монтажу Futura+CoolBreeze
file
Замовити консультацію

    Натискаючи кнопку “Надіслати”, ви погоджуєтесь з Правилами обробки персональних даних
    Ексклюзивний імпортер в Україні
    0 800 33 72 02 office@dbuy.ua
    Київ, вул. М. Максимовича, 24
    https://dbuy.ua/